- 800 m² de construcción
- 800 m² de terreno
Ver Tour Virtual
Detalles
- Tipo: Nave industrial
- ID: EB-UF8675
- Clave interna: NAVE46
- Antigüedad: A estrenar
- Pisos: 1
Descripción
Ideal para almacenamiento, distribución o producción.
UBICADA DENTRO DEL PARQUE INDUSTRIAL SUSTENTABLE CON LA MEJOR UBICACIÓN EN EL SURESTE DE MÉXICO.
Parque estratégicamente ubicado en el corredor industrial de mayor crecimiento, entre el Periférico y el nuevo Anillo Vial Metropolitano de Mérida, Yucatán; con conexión estratégica a los principales nodos logísticos del sureste: Puerto de Progreso, Tren Maya de carga y conexiones terrestres, a tan solo 15 minutos del Aeropuerto Internacional de Mérida.
EN CASTELLI PARK ENCONTRARÁS NAVES INDUSTRIALES CON TERRENOS, MUROS, ANDENES, PATIOS, ESTACIONAMIENTOS Y SERVICIOS TOTALMENTE INDEPENDIENTES.
CERTEZA JURÍDICA:
1.-Uso de suelo industrial no contaminante
2.-Escritura pública
3.-Manifestación de impacto ambiental
4.-Autorización CONAGUA
5.-Factibilidad para licencia de funcionamiento industrial y comercial
6.-Factibilidad CFE
7.-Factibilidad de fibra óptica (Telmex)
SOLUCIONES, CASTELLI PARK:
1.-Diseñamos, planeamos y proyectamos espacios a la medida de tus necesidades.
2.-En Castelli Park encontrarás un sinfín de soluciones: desde la correcta selección del espacio, la planeación de tu layout de procesos, hasta el acompañamiento durante la etapa de construcción, adecuación y puesta en marcha de tu proyecto.
3.-Una vez instalados, nuestro equipo de profesionales te acompaña en el día a día, facilitandote las necesidades cotidianas, servicios municipales, trámites y mantenimientos, cuidando cada detalle para que la operación de tu empresa funcione como lo has planeado.
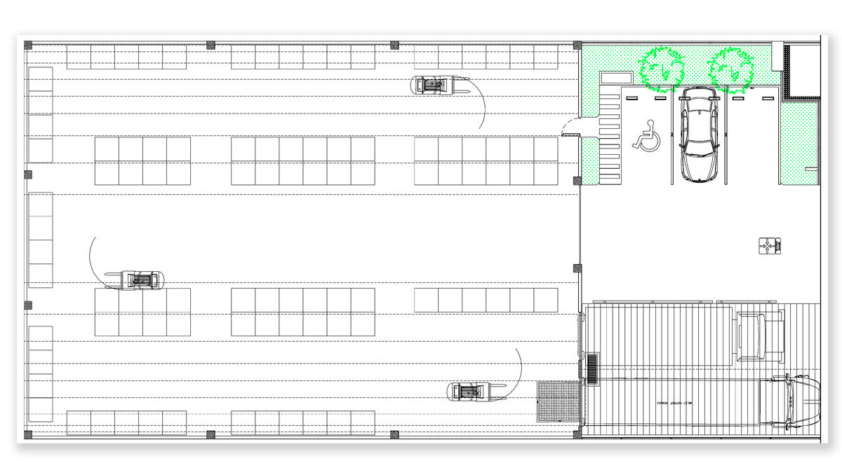
CARACTERÍSTICAS PROPIAS DE LA NAVE:
1.- 800.00 m² de terreno en propiedad
2.- 560.00 m² de área techada, con hasta 10 m de altura
3.- 240.00 m² distribuidos entre andenes, área de maniobras, estacionamientos
4.- Servicios y áreas verdes propias de la nave
5.- Energía en media tensión trifásica, suministrada por CFE, según proyecto
6.-Planta de tratamiento propia, en cumplimiento con la normatividad ambiental
7.- Espacios para estacionamiento configurables según necesidades
8.- Pisos de alta resistencia, con planimetría adecuada para distintos tipos de montacargas
9.- Preparaciones para rampas mecánicas o hidráulicas y mini dock en andenes de carga y descarga
10.- Cortinas metálicas enrollables con preparación para automatización
11.- Pozos de infiltración para recarga de mantos acuíferos con recuperación de agua pluvial en cumplimiento a la norma ambiental.
12.- Preparaciones para instalación eléctrica subterránea
13.- Preparaciones para conexión de fibra óptica (disponible en el parque)
14.- Cisterna propia
15.- Adecuaciones para iluminación LED
16.- Preparaciones para crecimiento del área útil de almacenamiento y colocación de cerca metálica en áreas exteriores
17.- Preparaciones para construcción y adecuación de oficinas, comedor y núcleos sanitarios en uno, dos o tres niveles al interior de la nave.
18.- Estructura metálica y techumbre de la nave calculados para recibir a instalar paneles solares.
AMENIDADES, CASTELLI PARK:
1.- Urbanización de primer nivel, incorporando tecnologías sustentables en armonía con el medio ambiente
2.- Área de comedor para personal operativo (en construcción)
3.- Trailer park
4.- Áreas para estacionamientos
5.- Hotel para personal operativo
6.- Centro de negocios (en construcción)
7.- Control de acceso 24/7, los 365 días del año
8.- CCTV
9.- Iluminación urbana solar
LLÁMANOS Y DESCUBRE LAS VENTAJAS DE ESTAR DENTRO DE UN PARQUE INDUSTRIAL RODEADO DE EMPRESAS DE PRIMER NIVEL.
UBICADA DENTRO DEL PARQUE INDUSTRIAL SUSTENTABLE CON LA MEJOR UBICACIÓN EN EL SURESTE DE MÉXICO.
Parque estratégicamente ubicado en el corredor industrial de mayor crecimiento, entre el Periférico y el nuevo Anillo Vial Metropolitano de Mérida, Yucatán; con conexión estratégica a los principales nodos logísticos del sureste: Puerto de Progreso, Tren Maya de carga y conexiones terrestres, a tan solo 15 minutos del Aeropuerto Internacional de Mérida.
EN CASTELLI PARK ENCONTRARÁS NAVES INDUSTRIALES CON TERRENOS, MUROS, ANDENES, PATIOS, ESTACIONAMIENTOS Y SERVICIOS TOTALMENTE INDEPENDIENTES.
CERTEZA JURÍDICA:
1.-Uso de suelo industrial no contaminante
2.-Escritura pública
3.-Manifestación de impacto ambiental
4.-Autorización CONAGUA
5.-Factibilidad para licencia de funcionamiento industrial y comercial
6.-Factibilidad CFE
7.-Factibilidad de fibra óptica (Telmex)
SOLUCIONES, CASTELLI PARK:
1.-Diseñamos, planeamos y proyectamos espacios a la medida de tus necesidades.
2.-En Castelli Park encontrarás un sinfín de soluciones: desde la correcta selección del espacio, la planeación de tu layout de procesos, hasta el acompañamiento durante la etapa de construcción, adecuación y puesta en marcha de tu proyecto.
3.-Una vez instalados, nuestro equipo de profesionales te acompaña en el día a día, facilitandote las necesidades cotidianas, servicios municipales, trámites y mantenimientos, cuidando cada detalle para que la operación de tu empresa funcione como lo has planeado.
CARACTERÍSTICAS PROPIAS DE LA NAVE:
1.- 800.00 m² de terreno en propiedad
2.- 560.00 m² de área techada, con hasta 10 m de altura
3.- 240.00 m² distribuidos entre andenes, área de maniobras, estacionamientos
4.- Servicios y áreas verdes propias de la nave
5.- Energía en media tensión trifásica, suministrada por CFE, según proyecto
6.-Planta de tratamiento propia, en cumplimiento con la normatividad ambiental
7.- Espacios para estacionamiento configurables según necesidades
8.- Pisos de alta resistencia, con planimetría adecuada para distintos tipos de montacargas
9.- Preparaciones para rampas mecánicas o hidráulicas y mini dock en andenes de carga y descarga
10.- Cortinas metálicas enrollables con preparación para automatización
11.- Pozos de infiltración para recarga de mantos acuíferos con recuperación de agua pluvial en cumplimiento a la norma ambiental.
12.- Preparaciones para instalación eléctrica subterránea
13.- Preparaciones para conexión de fibra óptica (disponible en el parque)
14.- Cisterna propia
15.- Adecuaciones para iluminación LED
16.- Preparaciones para crecimiento del área útil de almacenamiento y colocación de cerca metálica en áreas exteriores
17.- Preparaciones para construcción y adecuación de oficinas, comedor y núcleos sanitarios en uno, dos o tres niveles al interior de la nave.
18.- Estructura metálica y techumbre de la nave calculados para recibir a instalar paneles solares.
AMENIDADES, CASTELLI PARK:
1.- Urbanización de primer nivel, incorporando tecnologías sustentables en armonía con el medio ambiente
2.- Área de comedor para personal operativo (en construcción)
3.- Trailer park
4.- Áreas para estacionamientos
5.- Hotel para personal operativo
6.- Centro de negocios (en construcción)
7.- Control de acceso 24/7, los 365 días del año
8.- CCTV
9.- Iluminación urbana solar
LLÁMANOS Y DESCUBRE LAS VENTAJAS DE ESTAR DENTRO DE UN PARQUE INDUSTRIAL RODEADO DE EMPRESAS DE PRIMER NIVEL.
Amenidades
- Andén
- Facilidad para estacionarse
- Accesibilidad para personas con discapacidad
- Rampas
- Seguridad 24 horas
Ubicación
Mérida, Mérida, Yucatán
Contáctanos











